salle de spectacle 400 places - Saint-Leu-La-Forêt - concours 2023
L’inscription de la salle de spectacles dans le quartier pavillonnaire de la gare s’appuie sur la trame des sentes de la commune et son univers paysager. Installée en partie Nord du site le long des voies ferrées, la salle ménage un parvis à l’angle des deux rues ainsi qu’un jardin public au Sud sur lequel s’ouvrent la salle polyvalente et les locaux de la vie culturelle. Le volume affiche sa nécessaire monumentalité depuis la gare, par sa grande façade en brique agrémentée d’écran d’affichage des manifestations culturelles.
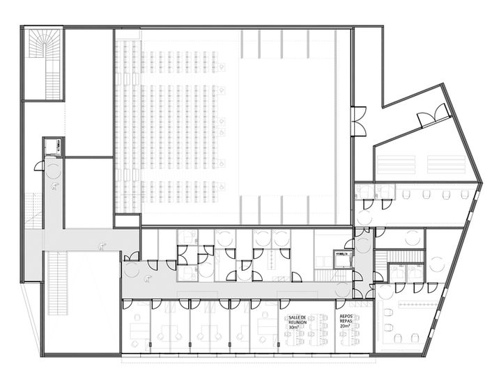
La salle de spectacles offre plusieurs configurations scénographiques pour une grande modularité : configuration spectacle 200 places assises modulables à 400 places, configuration expositions 450 m² à plat, configuration concerts debout et assis. Le foyer en double hauteur et les circulations sont éclairées naturellement et profitent des jardins arborés.
Volontairement compact et ouvert au Sud pour des questions d’apport solaire, le projet se pare de maçonnerie de brique de teinte claire en lien avec les pierres meulières du quartier.
7 081 000€ ht
SP: 1 448 m²
MOA: Ville de Saint-Leu-la-Forêt
MOE: dsa-damien surroca architectes
SIRETEC Ingénierie – SOLARES BAUEN – ESP/DB SILENCE – Changement à Vue
crédits: into perspectives - dsa















